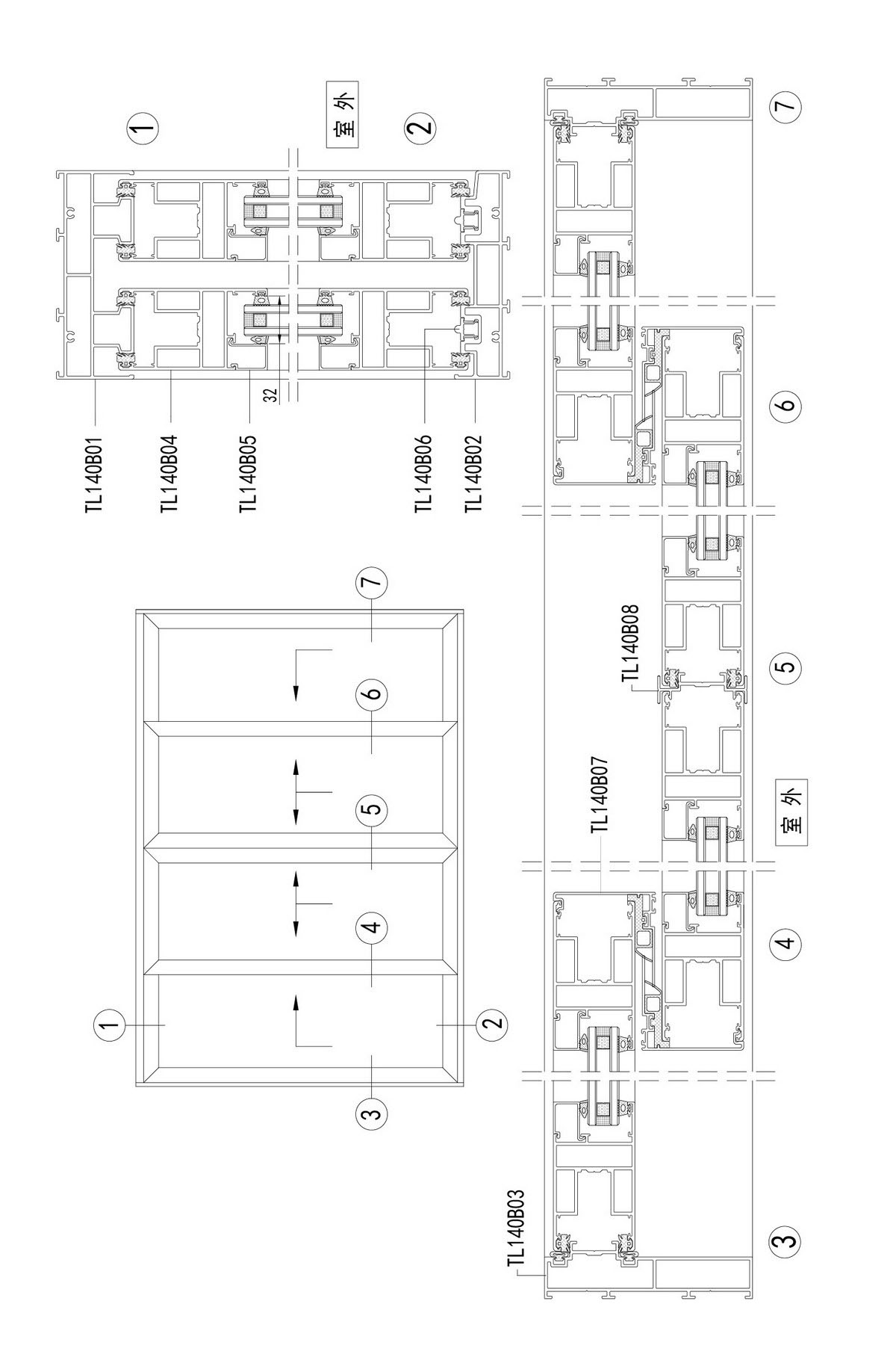
• TL140B系列提升推拉门

TL140B系列提升推拉门

系列产品介绍

  • 外观设计大气、豪华、简介、美观,型材截面大,强度高,密封好;

  • 主材经优化设计,附件通用性强,方便安装,实现多种使用功能,加工效率高;

  • 采用三轨边框时,带金刚网防盗纱门;

  • 应用带胶垫的不锈钢轨道,使推拉过程更轻便、顺畅,防噪音、经久耐用,永不褪色;

  • 当采用39宽6+27A+6中空玻璃时,刻内置电动、遥控或手动磁条百叶。

  • TL140B系列提升推拉门